| pomieszczenie | [m2] |
|---|---|
| komórka lokatorska | 12,4 |
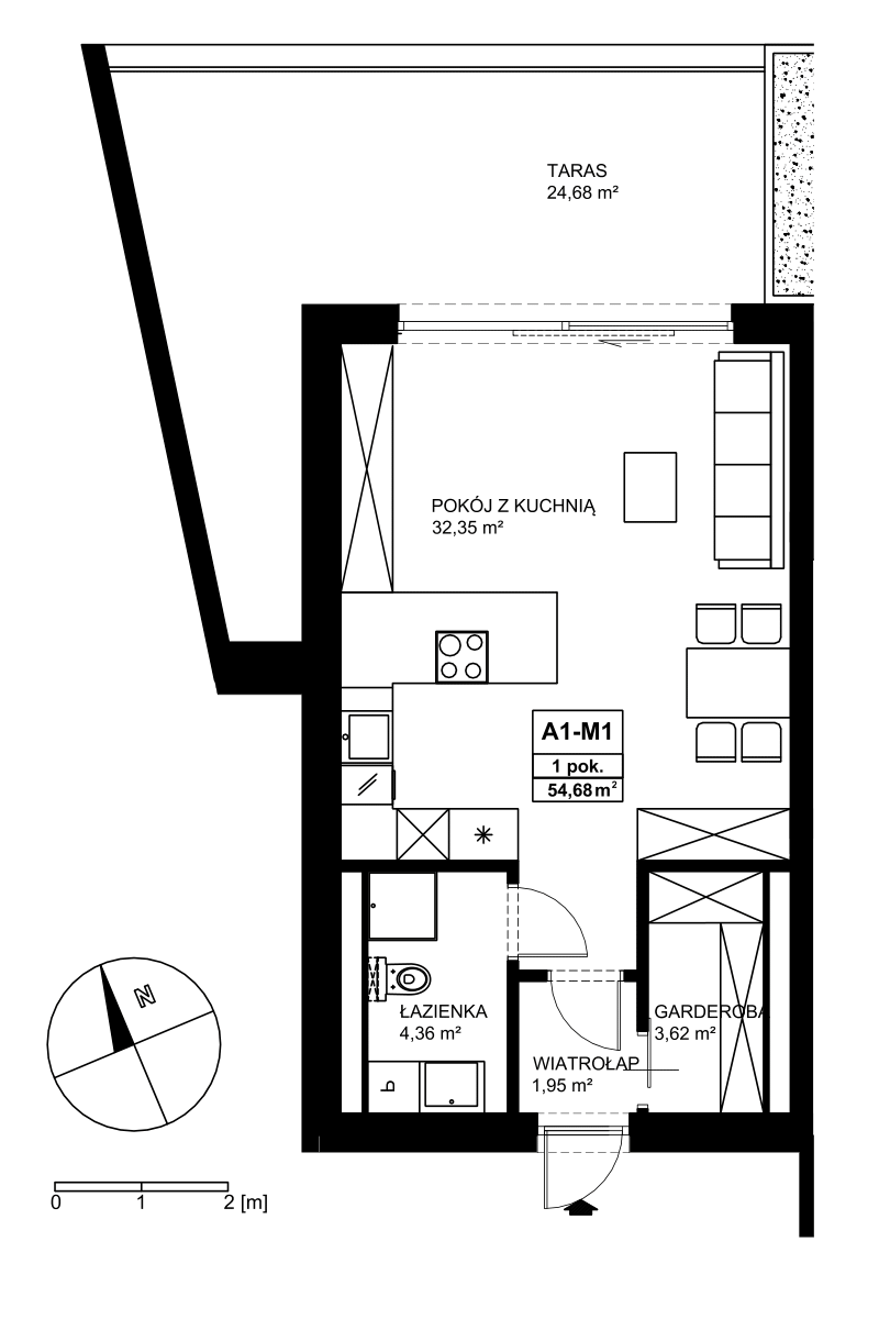
| wiatrołap | 1,95 |
| łazienka | 4,36 |
| pokój dzienny z aneksem kuchennym | 32,35 |
| garderoba | 3,62 |
| suma | 54,68 |
| taras | 24,68 |
| powierzchnia apartamentu | 42,28 |
| cena apartamentu brutto wraz z miejscem postojowym i komórką lokatorską | 1 094 083,20 zł |

