| pomieszczenie | [m2] |
|---|---|
| komórka lokatorska | 6,79 |
| pokój dzienny z aneksem kuchennym | 33,6 |
| schody | 1,65 |
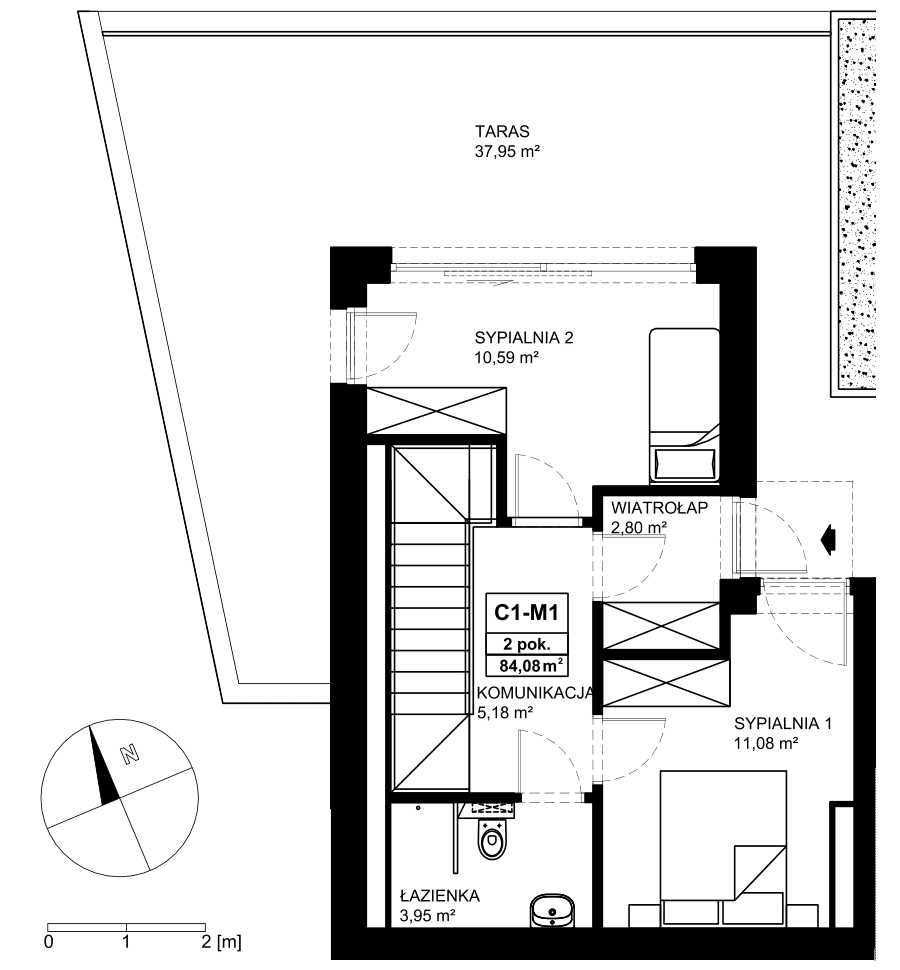
| łazienka | 3,89 |
| wiatrołap | 2,8 |
| komunikacja | 5,18 |
| sypialnia 1 | 11,08 |
| łazienka | 3,95 |
| schody | 4,55 |
| sypialnia 2 | 10,59 |
| suma | 84,08 |
| taras | 37,95 |
| powierzchnia apartamentu | 77,29 |
| cena apartamentu brutto wraz z miejscem postojowym i komórką lokatorską | 2 002 750,60 zł |

