| pomieszczenie | [m2] |
|---|---|
| komórka lokatorska | 7,86 |
| wiatrołap | 2,85 |
| pokój dzienny z aneksem kuchennym | 26,62 |
| sypialnia | 9,87 |
| łazienka | 4,85 |
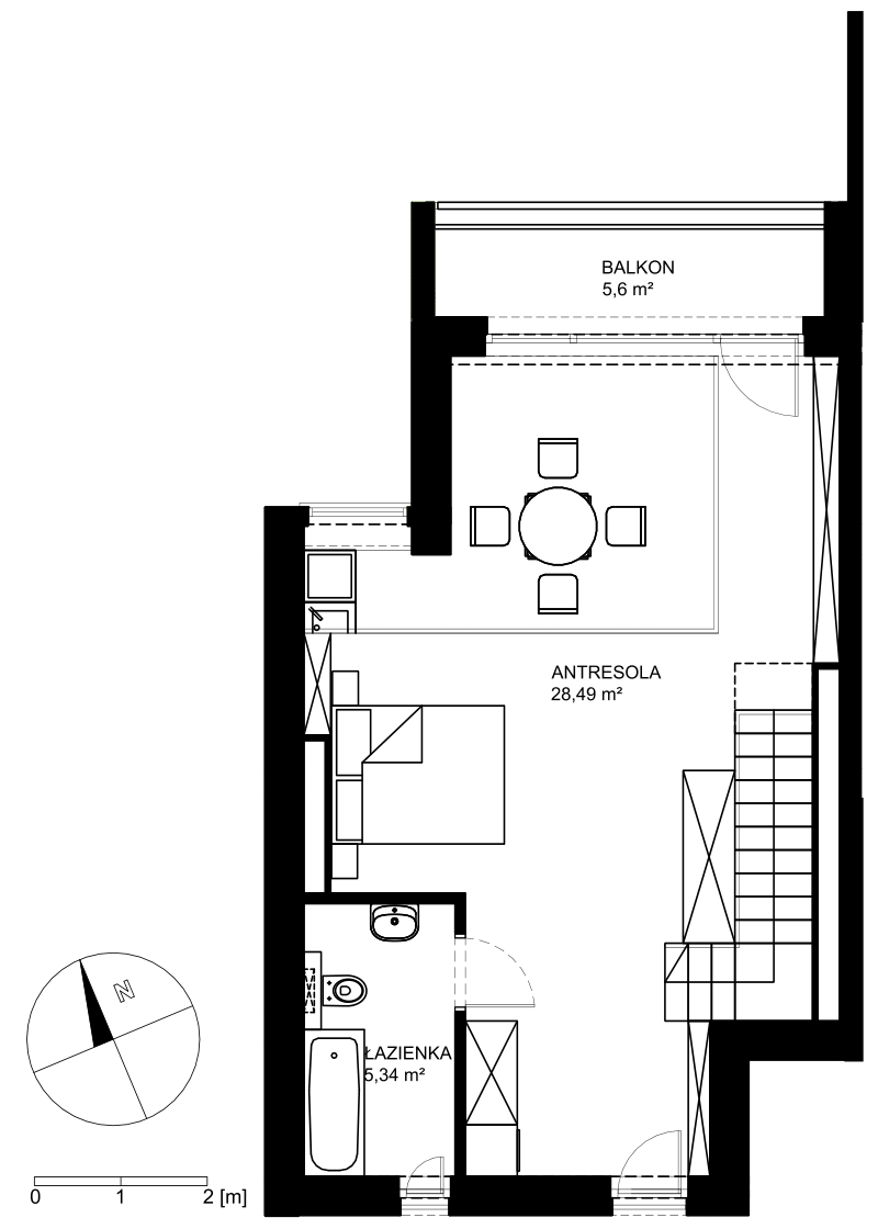
| antresola | 28,49 |
| łazienka | 5,34 |
| schody | 4,33 |
| suma | 90,21 |
| taras | 12,18 |
| balkon | 5,6 |
| powierzchnia apartamentu | 82,35 |
| cena apartamentu brutto wraz z miejscem postojowym i komórką lokatorską | 1 630 189,80 zł |
