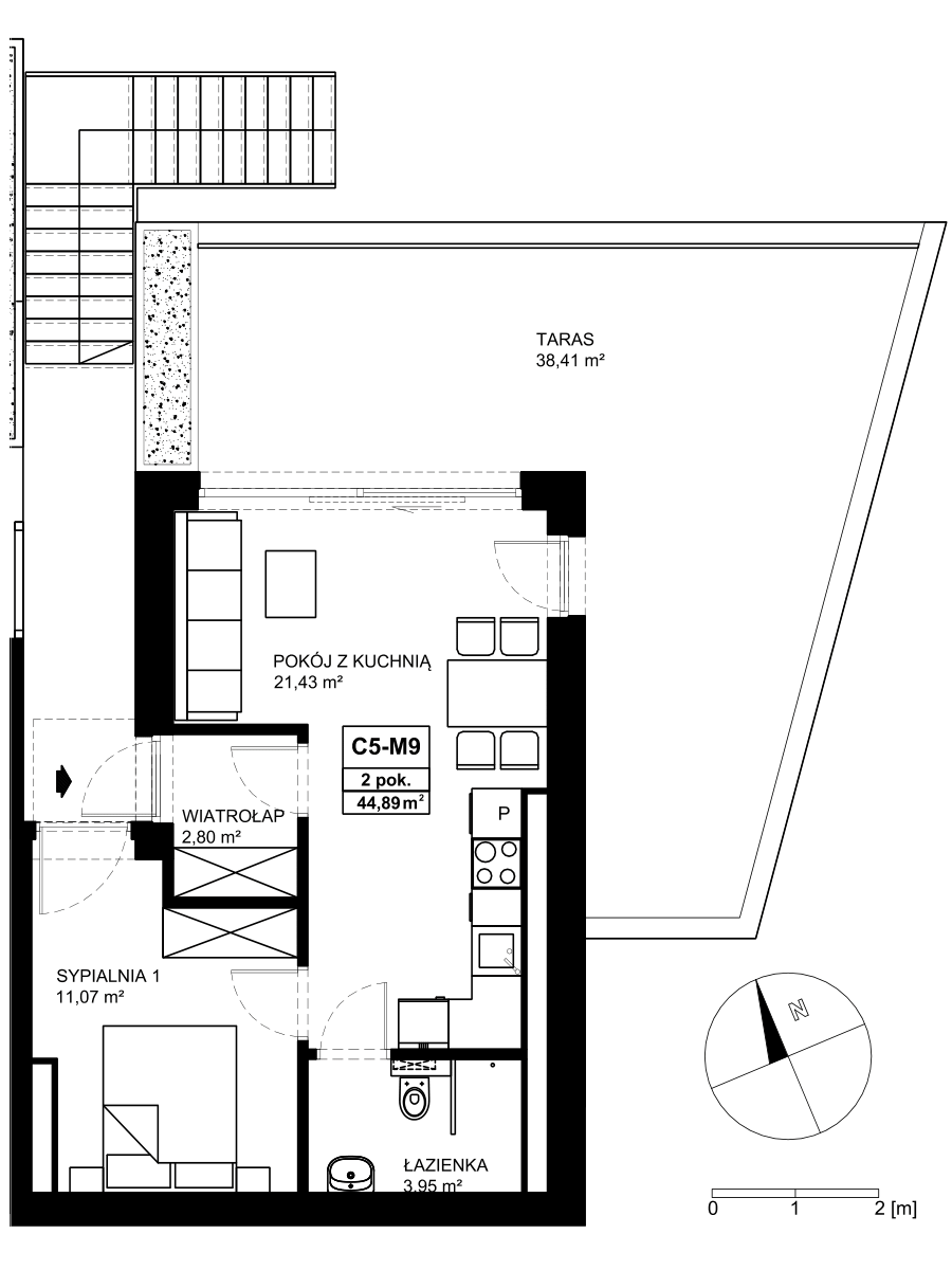
| pomieszczenie | [m2] |
|---|---|
| komórka lokatorska | 5,64 |
| wiatrołap | 2,8 |
| pokój dzienny z aneksem kuchennym | 21,43 |
| sypialnia | 11,07 |
| łazienka | 3,95 |
| suma | 44,89 |
| taras | 38,41 |
| powierzchnia apartamentu | 39,25 |
| cena apartamentu brutto wraz z miejscem postojowym i komórką lokatorską | 1 041 769,51 zł |

