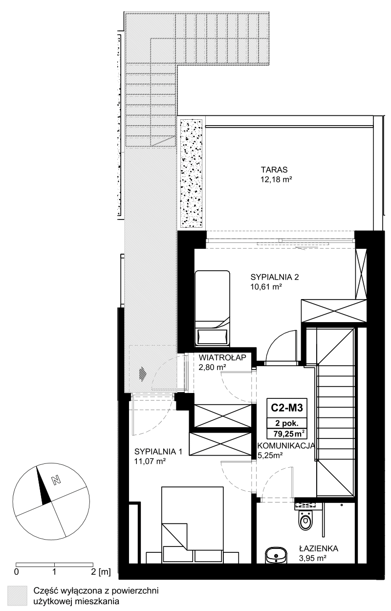
| pomieszczenie | [m2] |
|---|---|
| komórka lokatorska | 7,86 |
| pokój dzienny z aneksem kuchennym | 30,13 |
| schody | 1,5 |
| wc | 1,5 |
| wiatrołap | 2,8 |
| komunikacja | 5,25 |
| sypialnia 1 | 11,07 |
| łazienka | 3,95 |
| schody | 4,58 |
| sypialnia 2 | 10,61 |
| suma | 79,25 |
| taras | 12,18 |
| powierzchnia apartamentu | 71,39 |
| cena apartamentu brutto wraz z miejscem postojowym i komórką lokatorską | 1 295 174,29 zł |

