| pomieszczenie | [m2] |
|---|---|
| komórka lokatorska | 12,4 |
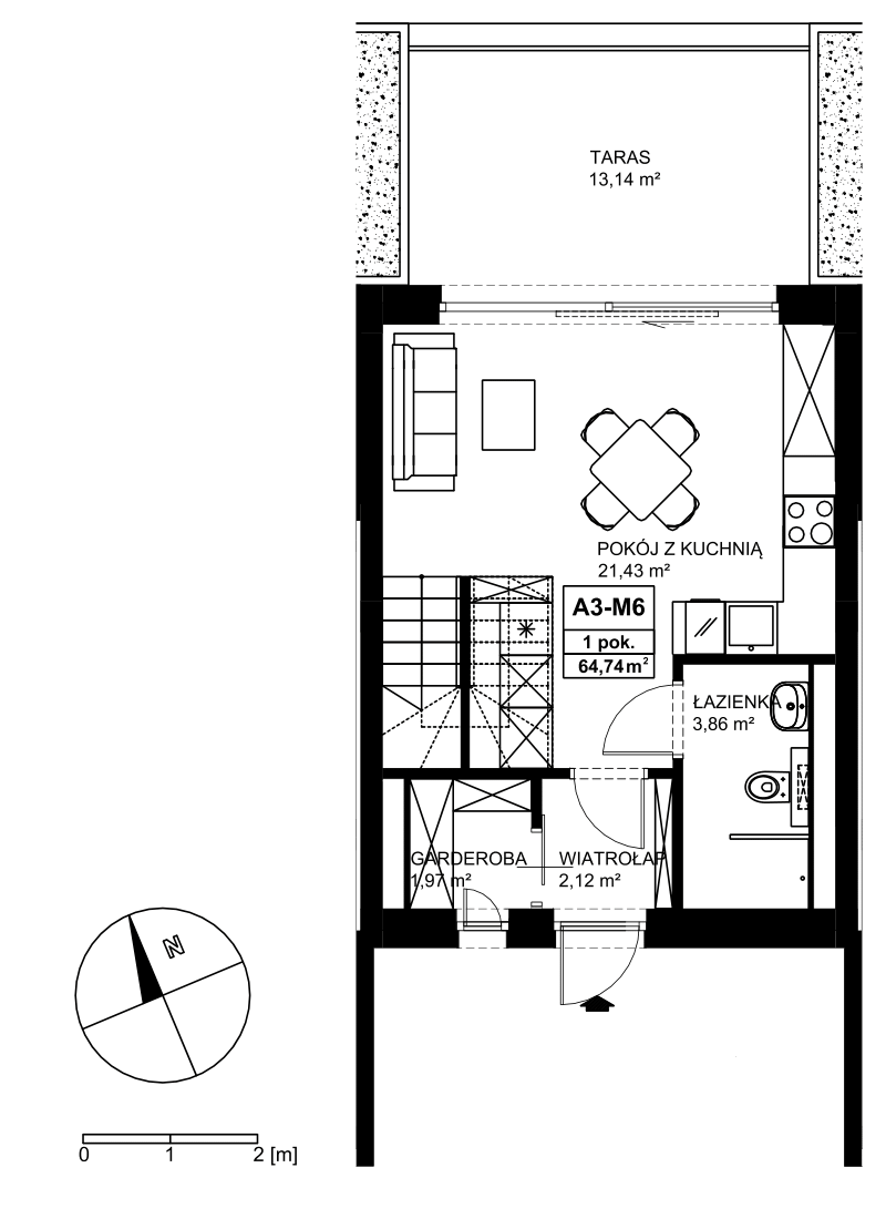
| wiatrołap | 2,12 |
| garderoba | 1,97 |
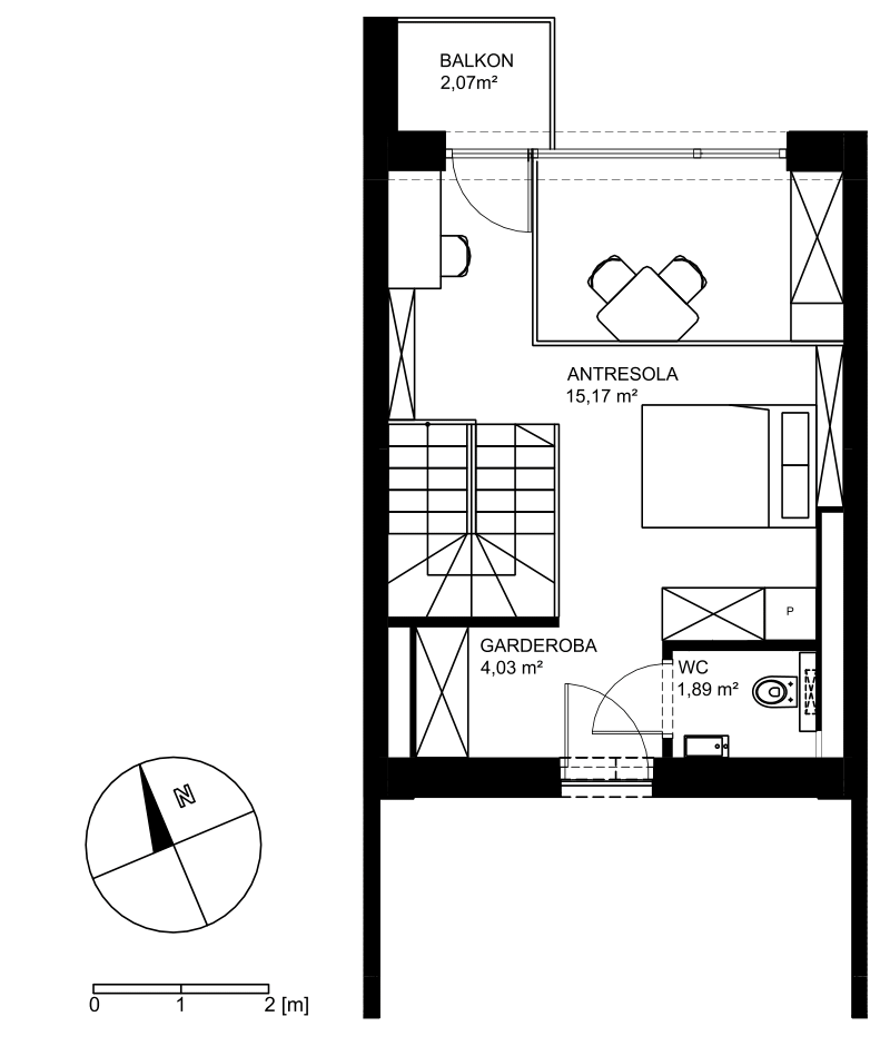
| schody | 1,87 |
| pokój dzienny z aneksem kuchennym | 21,43 |
| łazienka | 3,86 |
| antresola | 15,17 |
| garderoba | 4,03 |
| wc | 1,89 |
| suma | 64,74 |
| taras | 13,14 |
| balkon | 2,07 |
| powierzchnia apartamentu | 52,34 |
| cena apartamentu brutto wraz z miejscem postojowym i komórką lokatorską | 1 237 488,84 zł |

