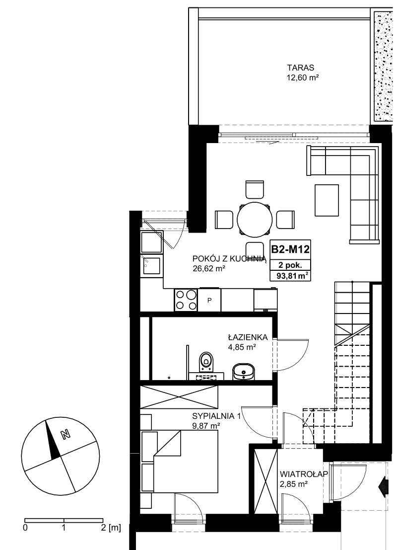
| pomieszczenie | [m2] |
|---|---|
| komórka lokatorska | 11,88 |
| wiatrołap | 2,85 |
| pokój dzienny z aneksem kuchennym | 26,98 |
| sypialnia | 9,87 |
| łazienka | 4,85 |
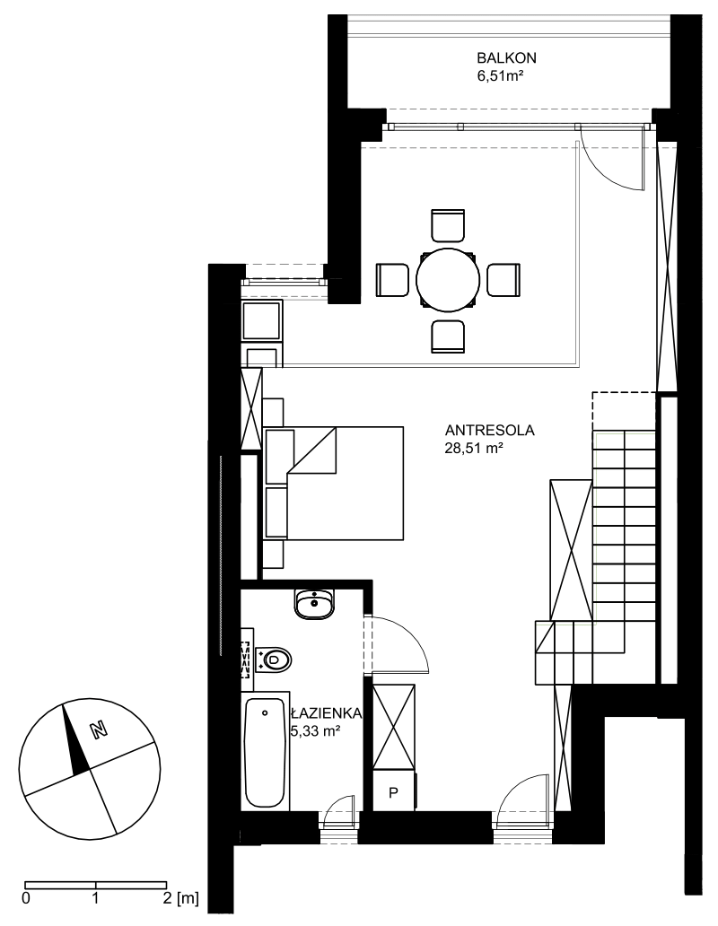
| antresola | 28,51 |
| łazienka | 5,33 |
| schody | 3,54 |
| suma | 93,81 |
| taras | 12,6 |
| balkon | 6,51 |
| powierzchnia apartamentu | 81,93 |
| cena apartamentu brutto wraz z miejscem postojowym i komórką lokatorską | 1 967 316,50 zł |

