| pomieszczenie | [m2] |
|---|---|
| komórka lokatorska | 4,83 |
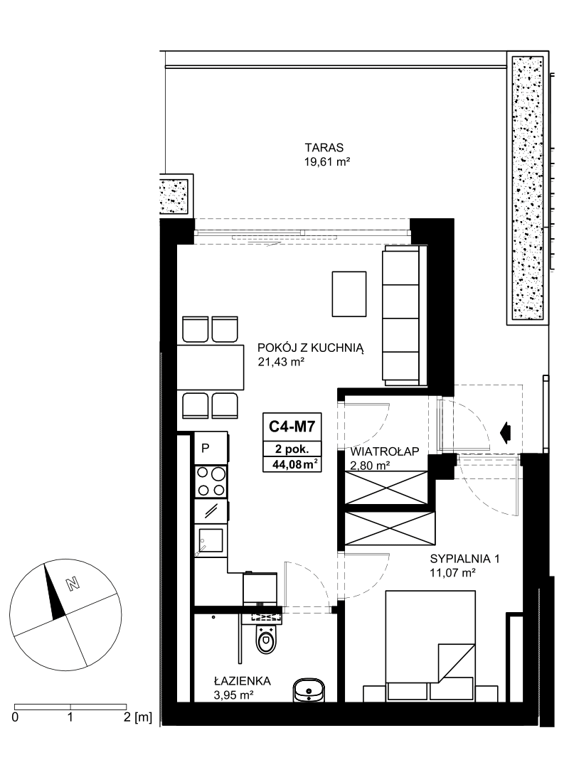
| wiatrołap | 2,8 |
| pokój dzienny z aneksem kuchennym | 21,43 |
| sypialnia | 11,07 |
| łazienka | 3,95 |
| suma | 44,08 |
| taras | 19,61 |
| powierzchnia apartamentu | 39,25 |
| cena apartamentu brutto wraz z miejscem postojowym i komórką lokatorską | 897 136,88 zł |

